Seniorenwohnanlage an der Brucher
- AdresseMarienheide
- Auftraggeberprivat
- Bauherrprivat
- RealisierungszeitraumBaubeginn Herbst 2020
- Gesamtwohnfläche7.100 m²
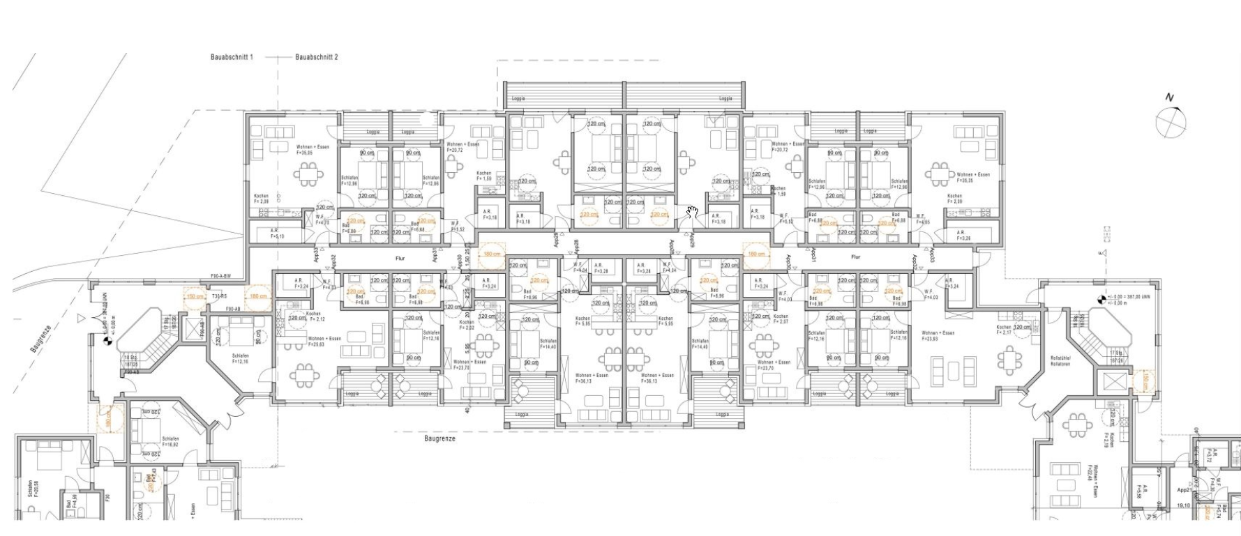
- Anzahl EinheitenBarrierefreie Wohnanlage mit 103 Wohneinheiten
- LeistungKonzept, Entwurf und Ausführung
Mit Anbindung an ein Wellnesshotel entsteht in Marienheide mit unverbaubarem Blick auf den idyllischen See der Brucher Talsperre eine barrierefreie Seniorenwohnanlage.
Die hofförmig angeordnete Anlage bietet mit 103 Wohneinheiten den künftigen Bewohnern ein Leben in und mit der Natur.
Durch die Hotelanbindung können die dortigen Annehmlichkeiten wie Restaurantbesuche oder Schwimmen genutzt werden.
Die Konzeption der barrierefreien Wohnungen sind auf unterschiedliche Bedürfnisse zugeschnitten. Es entstehen kleine Einheiten für „Singles“ und gleichfalls Wohnungen für Paare.
Im Staffelgeschoss werden großzügige Gartenwohnungen mit begrünten Dächern entstehen.


















