Wettbewerb Alte Herdfabrik - Offenburg
- AdresseOffenburg
- Auftraggeberprivat
- Bauherrprivat
- Zeitraum2020
- Gesamtnutzfläche3.500 m²
- Anzahl Einheiten56 Wohnungen
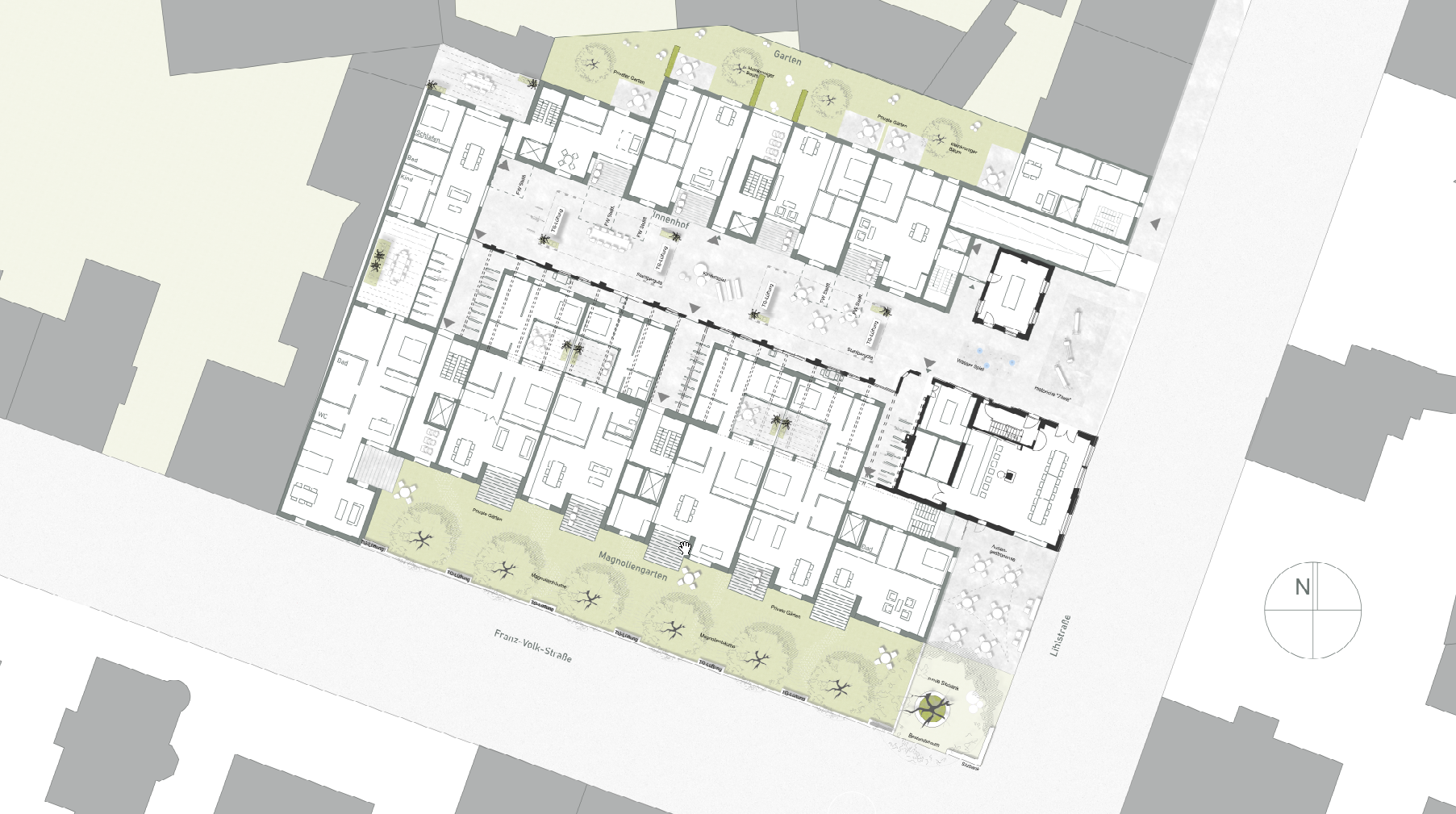
Auf dem Grundstück der „alten Herdfabrik“ in Offenburg sollen in einem zweiphasigen Wettbewerb unter Berücksichtigung der denkmalgeschützten Bausubstanz ca. 50 Wohneinheiten entstehen, die den historischen Charakter des Areals neu interpretieren.
Unser Konzeptansatz „die Permanenz der Struktur“ nimmt bewusst die vorhandene stringente Gliederung des Grundstücks und der historischen Hallen auf und erhält die Historie des Ortes, die „Fabrikantenvilla“ wird dabei wie ein Juwel eingerahmt.
Unser Wettbewerbsbeitrag erreicht die Endrunde der letzten 9 Teilnehmer.











